2024.11.03
출처
실내건축기사 실기 합격 후기 많은 부산 학원 알아봤어요
실내건축기사 실기 시험은 1년 3번뿐이라 한 번에 합격하지 못하면 몇 개월이라는 시간을 낭비하게 됩니다....
필리핀 클락 영어캠프 : 겨울방학 공참캠프(집중 학습형 캠프)
필리핀 클락 영어캠프 겨울방학 공참캠프 집중학습형 캠프 안녕하세요. 이번에 소개해드릴 해외 주니어 영...
실내건축기사 실기, 단 한 번에 합격하는 방법을 찾고 있다면 '필독'
"실내건축기사 실기 단 한 번에 합격하고 싶은데 이를 도와줄 곳 어디 없을까요?" 현재 이 글을 ...
SMIS 말레이시아 : 조호바루 가족캠프, 영어캠프 /제주 영어캠프 9월 설명회 신청하세요.
SMIS 말레이시아 조호바루 가족캠프 조호바루 영어캠프 제주 영어캠프 9월 설명회 신청하세요. 안녕하...
이번주 일상/생각 : 무더위 캠핑 & 먹방, 골프와 농장
이번주 일상/생각 무더위 캠핑 & 먹방 골프와 농장 무더위 캠핑.... 더울때 산속 계곡을 가면 시원하고...
실내건축기사 실기학원 선택 가이드
실내건축기사 실기학원 선택 가이드 '실내건축기사 실기 학원 선택의 중요성' 실내건축기사 자격...
에코보타닉 한국식당 : 마루식당, 찌개, 삼겹살 진짜 맛있음
에코보타닉 한국식당 마루식당 찌개, 삼겹살 진짜 맛있음 안녕하세요. 오늘 소개해드릴 식당은 조호바루 에...
실내건축기사 실기시험... 실격 당했습니다...흑
9월 10일에 시험 발표가 있었어요. 2회 정기 실기시험과 3회 정기 필기시험 합격자 발표가 있었는데요. 실...
실내건축기사 실기 후기 및 시험 합격 과정
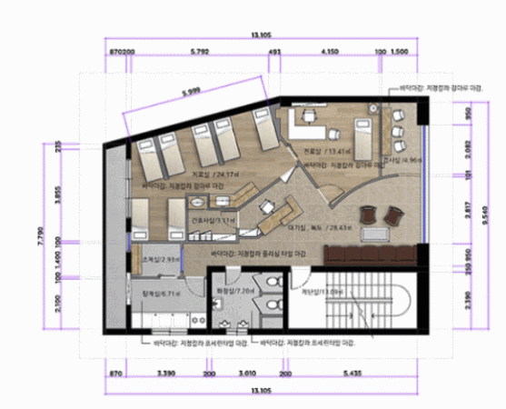
실내건축기사 실기는 인테리어 자격증 시험 중 난이도가 가장 높은 시험으로 독학하는 분이 거의 없는 것으...
실내건축기사 실기, 필기 준비방법, 필답형 분석
실내건축기사 실기, 필기 준비방법, 필답형 분석 최근 실내건축 분야의 중요성이 부각되면서, 실내건축기사...